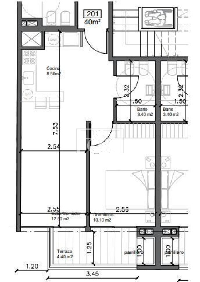
• Precio Lanzamiento En El Centro De La Ciudad Unidades De Un Dormitorio

Apartamento

Centro Montevideo, Montevideo

Venta USD 100.000

  • 1

    Dorms

  • 1

    Baños

  • Sup.

    44 m2

En Venta

ID de la propiedad : 86

AUMENTA TU RENTABILIDAD INVIRTIENDO EN *PRECIO LANZAMIENTO (En pozo)

EL COMPLEJO HABITACIONAL URBAN YI SE UBICA EN EL CENTRO DE LA CIUDAD DE MONTEVIDEO, PRÓXIMO A
TODOS LOS SERVICIOS DE LA MISMA.
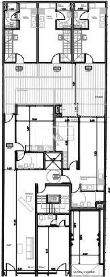
SE PROYECTA EN DOS TORRES VINCULADAS POR EL NÚCLEO DE CIRCULACIONES VERTICALES. CONSTA DE DOS
SUBSUELOS, PLANTA BAJA, SEIS PLANTAS DE UNIDADES HABITACIONALES Y UNA TERRAZA CON AMENITIES.
POSEE ESTACIONAMIENTO, CON CAPACIDAD PARA TRECE VEHÍCULOS.
SUM CON PARRILLERO Y TERRAZA CON PÉRGOLAS ORIENTADAS A LA FACHADA NORTE, PERMITIENDO UNA
EXCELENTE ILUMINACIÓN Y CONFORT TÉRMICO PARA EL MEJOR USO DURANTE TODO EL AÑO. EN EL MISMO NIVEL
SOBRE LA TORRE POSTERIOR SE ENCUENTRA EL LAVADERO.
TODOS LOS ESPACIOS COMUNES SON ILUMINADOS CON ENERGÍA OBTENIDA POR LOS PANELES FOTOVOLTAICOS
INCORPORADOS EN LA AZOTEA DEL ÚLTIMO NIVEL.
EN EL ACCESO AL EDIFICIO, EL PALÍE SE UBICA SISTEMA DE CONTROL DOMÓTICO, TANTO DE LA ILUMINACIÓN
COMO LA SEGURIDAD.
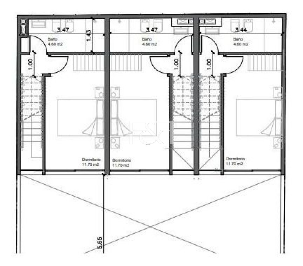
LAS UNIDADES DE UN DORMITORIO QUE DAN A LA ACERA DE LA CALLE YI POSEEN BALCÓN EN EL DESARROLLO
TOTAL DEL FRENTE DEL EDIFICIO CON PARRILLERO.
LAS TERMINACIONES DEL EDIFICIO TANTO EL HORMIGÓN VISTO EN LOSAS, PISOS DE MADERA, VIDRIO Y LOS
COLORES ESTÁN DISEÑADOS JUNTO A ESTUDIOS DE FENG SHUI, PARA QUE EN CONJUNTO CON LA ILUMINACION Y
SEGURIDAD.
EN LAS PLANTAS DEL NIVEL UNO AL NIVEL SEIS SE DESARROLLAN CUATRO UNIDADES HABITACIONALES, DOS DE
ELLAS DE UN DORMITORIO Y DOS MONOAMBIENTES.
LAS UNIDADES HABITACIONALES ESTÁN DISEÑADAS PARA TENER ILUMINACIÓN Y VENTILACIÓN CRUZADA. SUS
ABERTURAS SE UBICAN EN DIRECCIÓN ESTE- OESTE PERMITIENDO TENER ASOLEAMIENTO NATURAL TANTO EN LA
TARDE COMO EN LA MAÑANA. LOS PATIOS INTERNOS POSEEN ADOSADOS A LAS VENTANAS DE LAS UNIDADES A
NIVEL DE LOSA DE SUELO MACETEROS DE HORMIGÓN ARMADO QUE MEJORAN LA CALIDAD DE LA VISTA
INCORPORANDO VEGETACIÓN A LOS ESPACIOS.

Características

  • Barrio  Centro Montevideo
  • Distancia al Mar  0
  • Total m2  44
  • Propios m2  40
  • Dormitorios  1
  • Baños  1
  • Suites  0
  • Cocina  Cocina
  • Living  Si
  • Comedor  Si
  • Capacidad Personas  0
  • Cantidad Camas  0
  • Lavadero  Si
  • Parrillero  Si
  • Piscina  Si
  • Gimnasio  Si

Video

 Precio Lanzamiento En El Centro De La Ciudad Unidades De Un Dormitorio

Ubicación

Centro Montevideo, Montevideo

Solicita mas información